
“The essence of every composition perhaps emerges only through detailed and insightful observation of the real landscape, and any architectural problem can find an apt solution in the ground.”
These words by A. Konstantinidis served as the starting point for the compositional exploration of this residential complex designed for tourism use. For architect Maria Panagiotarou, the almost painstaking search for a composition arising from the ground itself was the foundation of the design. While the primary aim was to meet functional needs, a central objective was also to elevate the project to harmonize with the distinctive relief of the olive grove landscape in Astris, Thassos.




“The orientation, the climate, the views towards the sea, the rocky, barren land with the olive trees, as well as the boundaries of the plot, the scale, the character of the area, and the internal functional relationships of the building were the parameters of the compositional process.”


By reading the land with all its landscape parameters, the placement of the linear volume consisting of three identical units was chosen, almost at the top of the hill-plot, with the aim of exploiting all the visual perspectives, while simultaneously recreating a new ridge.


The linear development, parallel to the east-west axis, faces south towards the view of the sea, while functioning as a single stroke across the rocky landscape with the olive trees. This punctual intervention is essentially anchored to the natural ground with minimal alteration, leaving the land and the olive trees as untouched as possible.

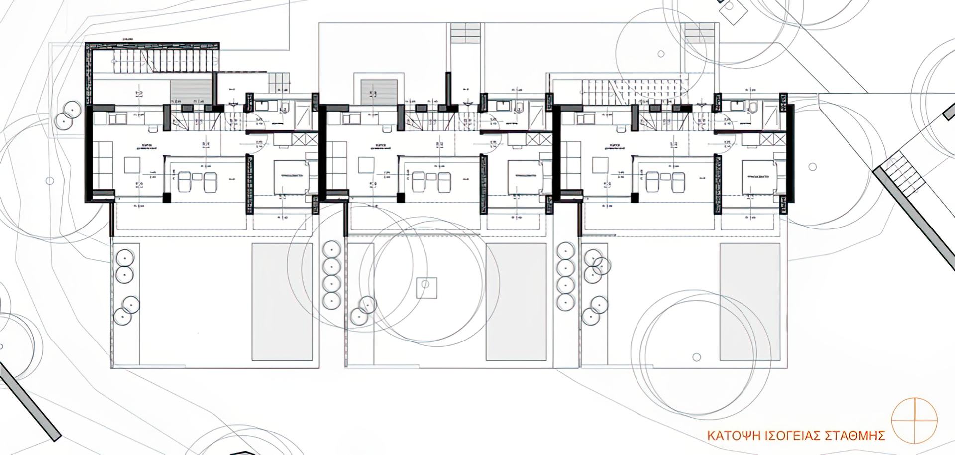
“The linear building volume essentially consists of three consecutive units in a row, referencing the cellular structures of the area under study.”

It consists of the ground floor and the attic level. On the ground floor, the living and sleeping areas are developed, while at the heart of each unit, a semi-outdoor space is created, forming a “summer” room that is open yet protected. The open southern facade, with its successive window frames, the creation of the semi-outdoor space, and the canopy extending from it, as well as the use of the same level, material, and floor height, unify the “inside” with the “outside.” This design dissolves the boundaries and extends life into the semi-outdoor and outdoor spaces.





Finally, it is worth noting that the aim of the composition was to adopt and relate the landscape features and the forces of the land (materials, textures, views). The exposed concrete, local stone, and plaster, combined with the colors and elements of the olive grove, as well as the interplay of light and shadow, shape the character of the area.

Ground floor plan

Attic floor plan

Cross section

Longitudinal section